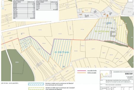
Kalkesbach soll in Zukunft ganz zur Gemeinde Berdorf gehören. Das teilt das Innenministerium am Mittwoch mit. Ein entsprechender Gesetzesentwurf sei fertiggestellt worden und könne nun in der Chamber gestimmt werden. Der Gesetzesentwurf sieht einen Gebietstausch zwischen den Gemeinden Berdorf und Consdorf vor. Beide Gemeinden hätten dem Tausch bereits im Herbst vergangenen Jahres zugestimmt. Berdorf tritt eine Fläche von insgesamt 338,73 Ar an Consdorf ab. Consdorf hingegen überlässt Berdorf ein Gebiet von 347.93 Ar – der südliche Teil von Kalkesbach. Der Tausch soll die Verwaltung der bisher zweigeteilten Ortschaft „wesentlich vereinfachen“. Diese obliegt derzeit nämlich beiden Gemeinden. Darunter würden beispielsweise das Entsorgen des Abfalls und die Wasserversorgung fallen.
LINK Hier finden Sie den Gesetzesentwurf zum Gebietstausch

Zu Demaart
Sie müssen angemeldet sein um kommentieren zu können